Trilocale in vendita

Codogno, Via Paolo Bignami
€ 230.000
3 locali 3 locali
83 Mq 83 Mq
2 bagni 2 bagni

Trilocale in vendita

Codogno, Via Paolo Bignami

Descrizione annuncio

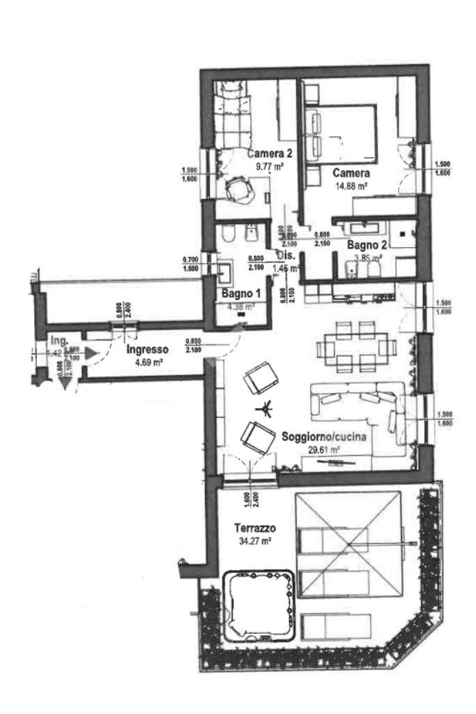
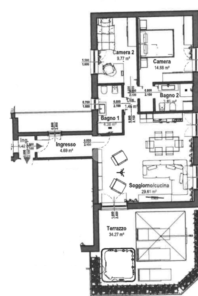
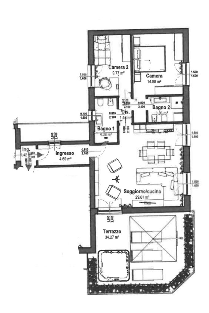
Ottima posizione a ridosso del centro storico della città, nuovo intervento in palazzina servita di ascensore formata da cinque unità abitative, proponiamo in vendita appartamento trilocale posto al piano rialzato di 83 mq oltre terrazza ad uso esclusivo.

Tutte le unità abitative saranno in consegna per fine 2026.

La soluzione è composta da ingresso sul soggiorno con cucina openspace, bagno di servizio, disimpegno, cameretta, camera padronale con bagno in suite e ampia terrazza che si affaccia sulla zona giorno.

Box doppio e ampia cantina con punti acqua e scarico per creare se richiesto una lavanderia, il tutto inclusi nel prezzo.

Caratteristiche tecniche:

Caldaia a condensazione con pompa di calore per garantire acqua sanitaria calda senza compromessi.

Impianto fotovoltaico con batteria d'accumulo.

Cappotto termico.

Serramenti di ultima generazione con vetrocamera, rivestimenti a basso emissivi.

Riscaldamento a pavimento, climatizzazione e ricircolo dell'aria automatizzato intelligente.

Avrai la possibilità di scegliere le finiture della tua nuova casa attraverso un capitolato di primissima qualità.

Mostra tutto

Nelle vicinanze

Trasporto pubblico Trasporto pubblico
stazione di Codogno
stazione di Codogno
830 m
Trasporto pubblico
2,3 Km
Scuole Scuole
Scuola Primaria "Anna Vertua Gentile"
450 m
Scuola Secondaria "Ognissanti"
510 m
Scuola media Piera Andreoli
520 m
Scuola dell'Infanzia e Primaria "San Biagio"
540 m
IPSIA "G. Ambrosoli"
570 m
Farmacia Farmacia
Farmacia San Biagio
450 m
Farmacia Scacchi
530 m
Farmacia Navilli
560 m
Farmacia Mocchi
700 m
Ospedali Ospedali
Ospedale Civico di Codogno
1,2 Km
Supermercati Supermercati
Lidl
520 m
Conad
630 m
Famila
1,2 Km
Foppa
1,4 Km
Supermercati
1,4 Km
Bar Bar
Osteria della noce
250 m
Ramage
260 m
Caffè Cesari
510 m
Bar Centrale
550 m
Bar Roberto
590 m
Ristoranti Ristoranti
il Gambero
130 m
Park Club
770 m
Ristorante Pizzeria Nord-Est
920 m
La Veranda
2,7 Km
Mostra tutto

Caratteristiche

Rif.:
61110287
Piano:
1 di 2 con ascensore (Piano medio)
Box:
1
Balconi:
1
Terrazzi:
1
Camere da letto:
2
Mostra tutto
Prezzo Prezzo
€ 230.000
Rata mutuo Rata mutuo
€ 1.086 / mese
Spese annue Spese annue
€ 0
Proponi il tuo prezzoProponi il tuo prezzo

Classe Energetica

A4
A4
A4
A4
A4
A4
A4
A4
A4
EP invernale del fabbricato:
EP estiva del fabbricato:
Anno di costruzione:
1965
Riscaldamento:
Autonomo
Tipo impianto:
A pavimento
Tipo alimentazione:
Pannelli

Ti interessa visionare l'immobile?

Fissa un appuntamento  Fissa un appuntamento

Richiedi informazioni

Clicca su Leggi per aprire l'informativa
* Questi campi sono obbligatori

Calcola il tuo mutuo

Semplice e senza impegno
Anticipo

( % )
Mutuo

( % )

pochi semplici passi

inserisci i tuoi dati
Questionario completato
Grazie per aver richiesto un appuntamento senza impegno con un nostro Consulente del Credito e Assicurativo.

Hai inserito correttamente tutti i dati necessari e a breve riceverai una e-mail con un link da convalidare per inviare i tuoi dati.
Affiliato
Tecnocastelleone Srl
Via G. Galilei, 5 26845 Codogno (LO)

Il nostro staff


  • Giovanni Picchetti
    Collaboratore

  • Marta Rocchetta
    Responsabile

  • Claudio Pezzotti
    Affiliato
Via G. Galilei, 5 26845 Codogno (LO)
Zona: Codogno
Mostra su mappa
Affiliato
Tecnocastelleone Srl
Via G. Galilei, 5 26845 Codogno (LO)

2025 Tecnocasa Franchising S.p.A. - P. IVA 08365160152 - Via Monte Bianco 60/A 20089 Rozzano (MI). Ogni agenzia ha un proprio titolare ed è autonoma. Privacy policy | Policy utilizzo | Cookie policy